Chalech 4
Lech, Austria![]()
Chalech 4, with superb spa facilities, offers a stylish and convenient base close to the lifts.
Accommodation
- Capacity:12+2 Guests
- Bedrooms:6
- Area:379 m2 / 4079.56 ft2
Pricing (per week)
- Fully Serviced:from EUR 50,230
- Bed and Breakfast:from EUR 25,860
- Self-Catered:from EUR 22,280
Facilities
- Cinema/TV Room
- Sauna
- Steam Room
- Swimming Pool
- Elevator
- Fireplace(s)
- Gym/Fitness
- Integrated sound system
- Parking
- Sat/Cable TV
- Ski Locker
- Terrace/Balcony(ies)
- Wellness/Relaxation Room
- Wi-Fi
Leo Trippi's Highlight
Property Tour & Rooms
Contemporary apartment in Lech
Chalech 4 is conveniently located within Lech, just a three-minute walk from the Schlosskopf chairlift and a 10-minute walk or three-minute drive from the centre of town.
Set over three floors, the ultra-stylish apartment can be accessed via stairs or a lift. The top floor of the chalet is home to an open plan living, dining and kitchen area which opens onto the terrace. A wood-burning stove in the corner of the living room creates a cosy atmosphere and is perfect for relaxing next to after a day on the slopes.
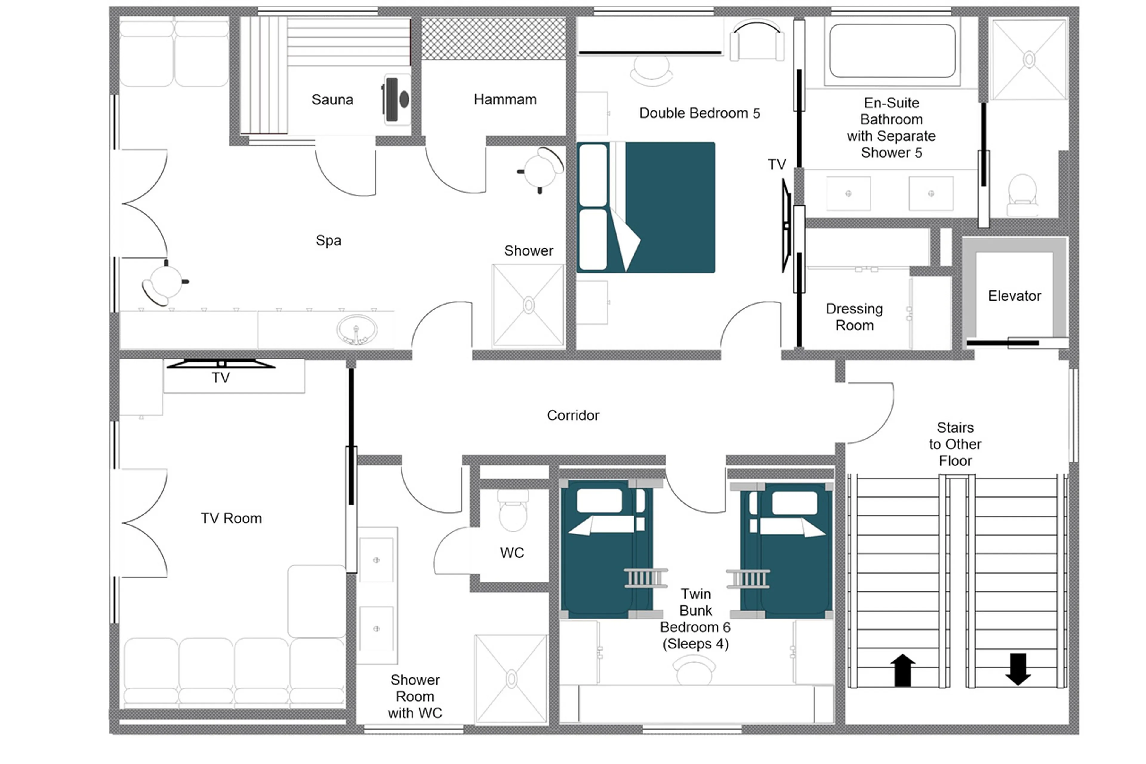
In addition to the main lounge, Chalech 4 has a separate TV room on the ground floor. Also on this level is a delightful spa area complete with hammam and sauna and plenty of space to relax.
In addition to its private spa area, guests staying at Chalech 4 also have access to a second wellness area which is shared between the other apartments. Facilities include an indoor swimming pool, tepidarium and a well-equipped gym. There is also a shared ski room with private ski lockers.
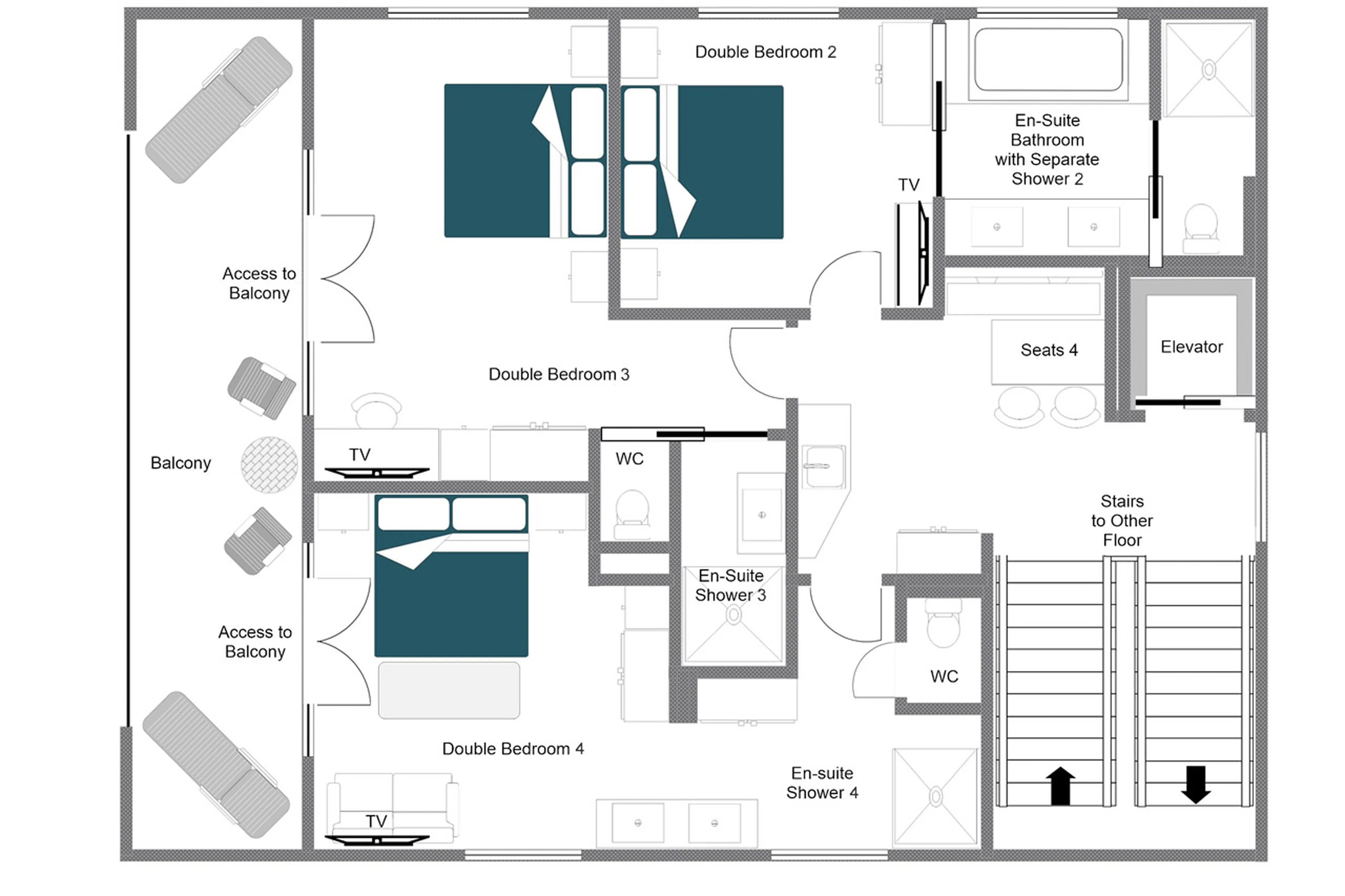
Chalech 4 is able to accommodate up to 12 adults and two children across six bedrooms which are divided between the three floors. On the top floor is the master suite which has a unique open plan bathroom. Three more double rooms are set on the first floor, all with en-suite facilities. A fifth double bedroom is located on the ground floor along with a quad bunk room.

Every booking with Leo Trippi includes hands on support and guidance from our passionate industry leading team.
Let us guide you every step of the way through your booking at Chalech 4. From ski instructors to childcare,
the best restaurants and wow moments, we will plan an experience that you’ll remember for ever in Lech.
Location of Chalech 4
Chalech 4 is conveniently located just a three-minute walk from the Schlosskopf chairlift, and only a 10-minute walk or a three-minute drive from the village centre, where you'll find a variety of shops, restaurants and bars.




















































